

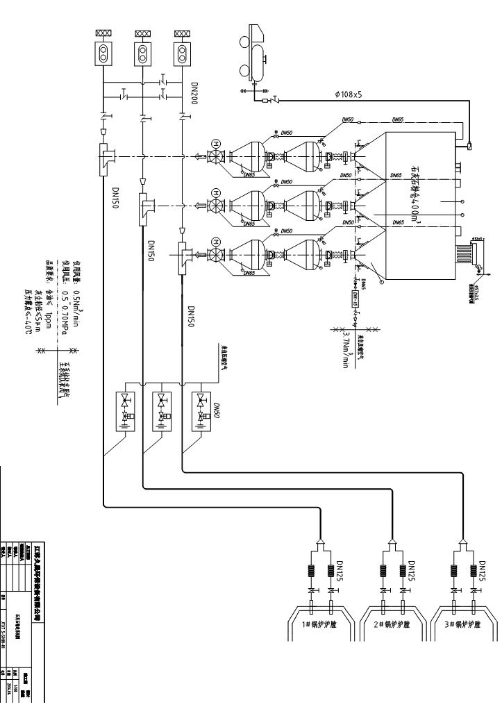
一、系统组成
石灰石粉炉内喷钙脱硫系统主要由石灰石粉仓(炉前仓)、手动检修门、圆顶阀、缓冲仓、旋转给料阀、气灰混合器、分配器及附属设备等组成的连续给料系统,根据系统输送出力、输送距离、输送气源种类的不同,选用不同的组合方式。
二、系统主要技术特点
1、进料阀采用气封式圆顶阀
无摩擦启闭,开启自如,不易卡涩,并且保障密封面在启闭过程中无摩擦损耗;
关闭后充气密封,柔性密封圈在高压作用下紧紧贴住圆顶,其接合面呈带状,密封性能好
气动执行元件为全密封气缸结构,直接驱动圆顶阀转动,有效地防止了灰尘进入其中造成的磨损、泄漏等问题
橡胶密封圈采用特殊配方的橡胶制成,具有耐腐蚀、耐磨损、耐老化等特点。
自动监测密封气压并有报警功能,确保密封良好
阀体采用耐磨铸钢,阀芯采用Cr-Mo合金,保障本体使用寿命为30年
2、给料阀采用专为石灰石连续输送研发的旋转给料阀
密封性好:可适用于0.15MPa的输送压力下运行;可有效解决输送气源向炉前返气现象;
耐磨性强:叶片喷涂有碳化钨涂层,适用于CaO含量较高的介质;
叶片可调整更换:当叶片磨损后,在叶轮轴无需更换的前提下,可方便的进行叶片调整、更换;
轴封采用气密封结构,确保旋转给料阀密封;
给料量的控制通过变频电机控制,计量。
3、气灰混合装置采用专为石灰石连续输送研发的新型气灰混合器,
既能保障石灰石粉的连续有效的进入输送管道,又能有效地解决返气现象;
设备安装高度低、阻力小、使用寿命长,可单独使用、也可串联使用,布置方式灵活;
4、采用新型的管路分配器,有效解决管道布置困难、弯头多、阻力大问题。